Verkocht

Oude Arnhemseweg 237 Zeist

Omschrijving

In de geliefde woonwijk de Dichtersbuurt gelegen klassiek jaren dertig herenhuis met voor- en achtertuin en achterom.
In de achtertuin (zuidwest) staat een eenvoudige houten schuur.
De woning dient intern te worden gemoderniseerd en aan de buitenzijde dient rekening gehouden te worden met onderhoud aan voornamelijk het houtwerk.
Fijne en rustige woonomgeving op korte afstand van het centrum van Zeist gesitueerd.

Indeling
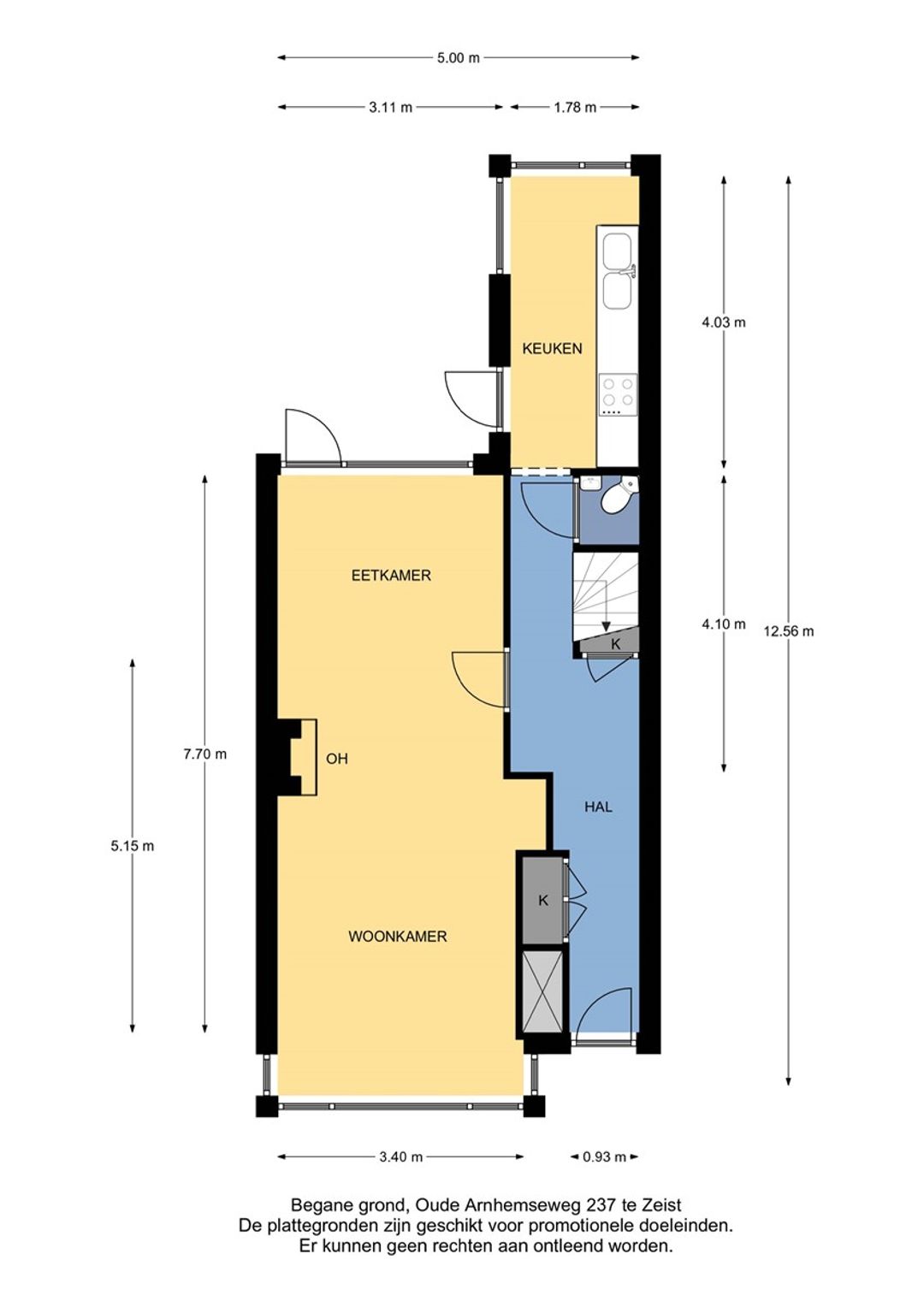
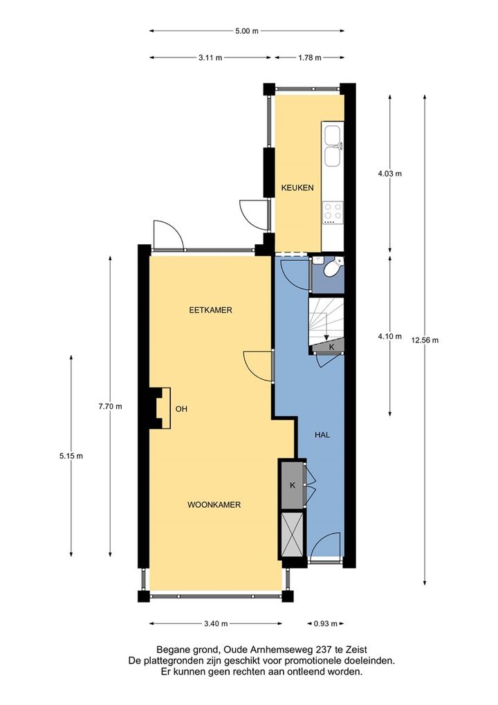
Begane grond:
Entree, gang met kelderkast, trapopgang en toilet.
Doorzonkamer voorzien van open haard. Dichte uitgebouwde keuken.
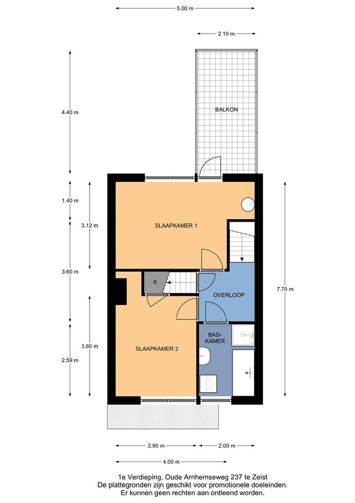
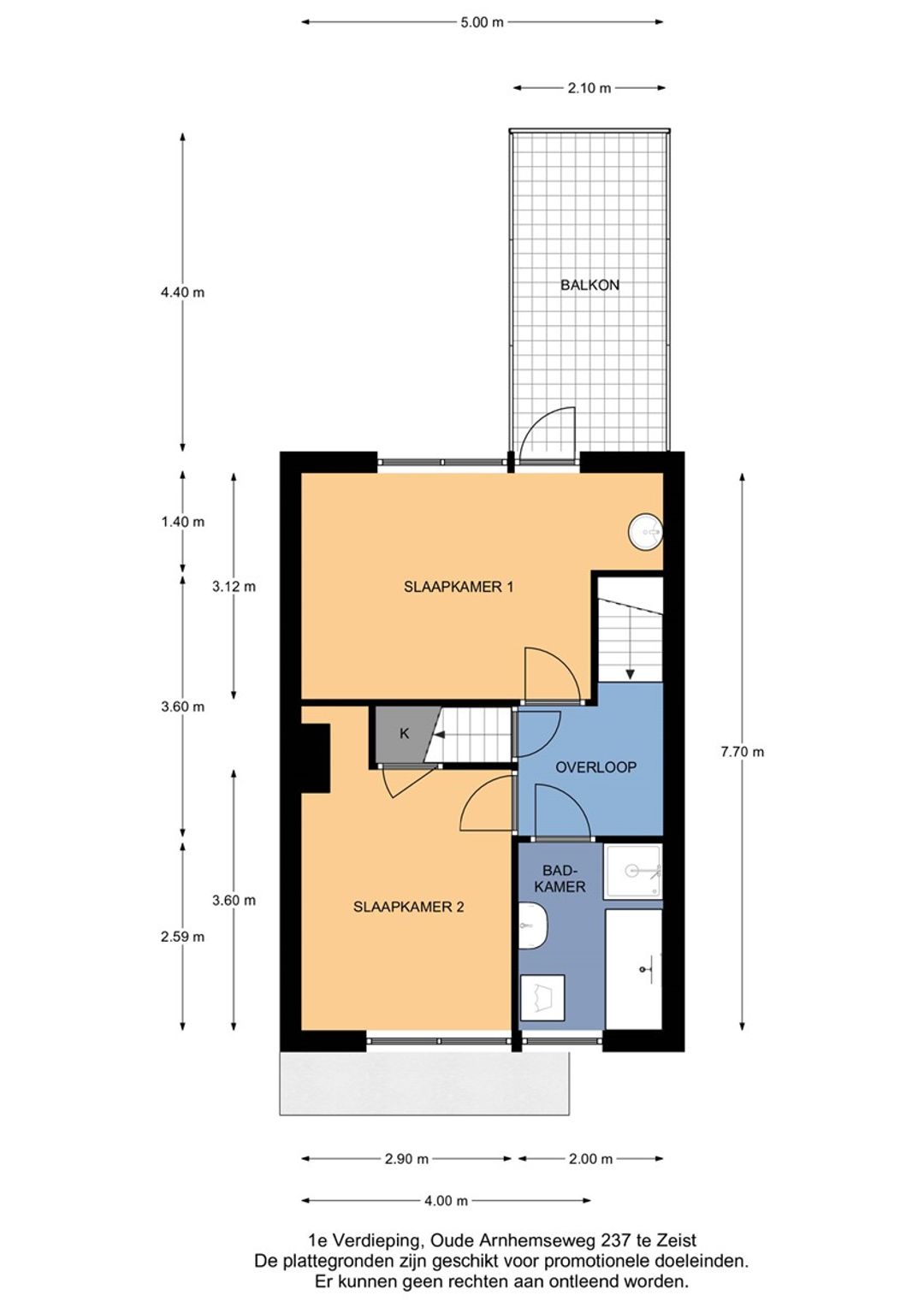
Eerste verdieping:
Overloop, ruime badkamer en twee slaapkamers.
De ouderslaapkamer aan de achterzijde heeft een toegang naar een terras gelegen op de uitbouw van de keuken.
Tweede verdieping:
Bereikbaar via een vaste trap.
Zolderverdieping welke nu bestaat uit één grote open ruimte voorzien van een dakraam aan de voorzijde en een brede dakkapel aan de achterzijde en een vliering.
Deze zolder is zeker geschikt voor het realiseren van bijvoorbeeld één of twee slaapkamers, een sanitaire voorziening en bergruimte.

Bijzonderheden:
– Bouwjaar circa 1938.
– Woonoppervlakte 116m², inhoud 410m³.
– Perceel 159m².
– Van deze woning is een onafhankelijk bouwkundig rapport opgesteld door MOB-Consultancy.
– Modernisering en verduurzaming noodzakelijk.
– In de NVM koopovereenkomst worden extra clausules opgenomen, te weten een ouderdomsclausule en een clausule dat de verkoper er zelf niet heeft gewoond als eigenaar/bewoner.
– Energielabel: vervaardiging is aangevraagd.
– Oplevering kan spoedig.

Lees de volledige omschrijving

Kenmerken

Aangeboden sinds
6+ maanden
Status
Verkocht
Aanvaarding
In overleg
Soort woonhuis
Eengezinswoning, tussenwoning
Soort bouw
Bestaande bouw
Bouwjaar
1938
Soort dak
Pannen
Ligging
In woonwijk

Oppervlakten en inhoud

Wonen
116 m²
Overige inpandige ruimte
5 m²
Gebouwgebonden Buitenruimte
9 m²
Externe bergruimte
6 m²
Perceel
159 m²
Inhoud
410 m³

Indeling

Aantal kamers
4 kamers (3 slaapkamers)
Aantal badkamers
1 badkamer
Badkamervoorzieningen
Douche, ligbad, wasmachineaansluiting, wastafel
Aantal woonlagen
4

Energie

Energielabel
E

Kadastrale gegevens

Perceelnaam
Zeist M 3730
Oppervlakte
159 m²
Eigendomssituatie
Volle eigendom
Perceel
ZEI00-M-3730

Buitenruimte

Tuin
Achtertuin, voortuin
Achtertuin
75 m²
Ligging tuin
Zuidwest bereikbaar via achterom

Parkeergelegenheid

Soort parkeergelegenheid
Openbaar parkeren
Bekijk alle kenmerken

Overige media